标准恒温恒湿车间如何设计
发布时间: 作者:小科 出处:科瓦特
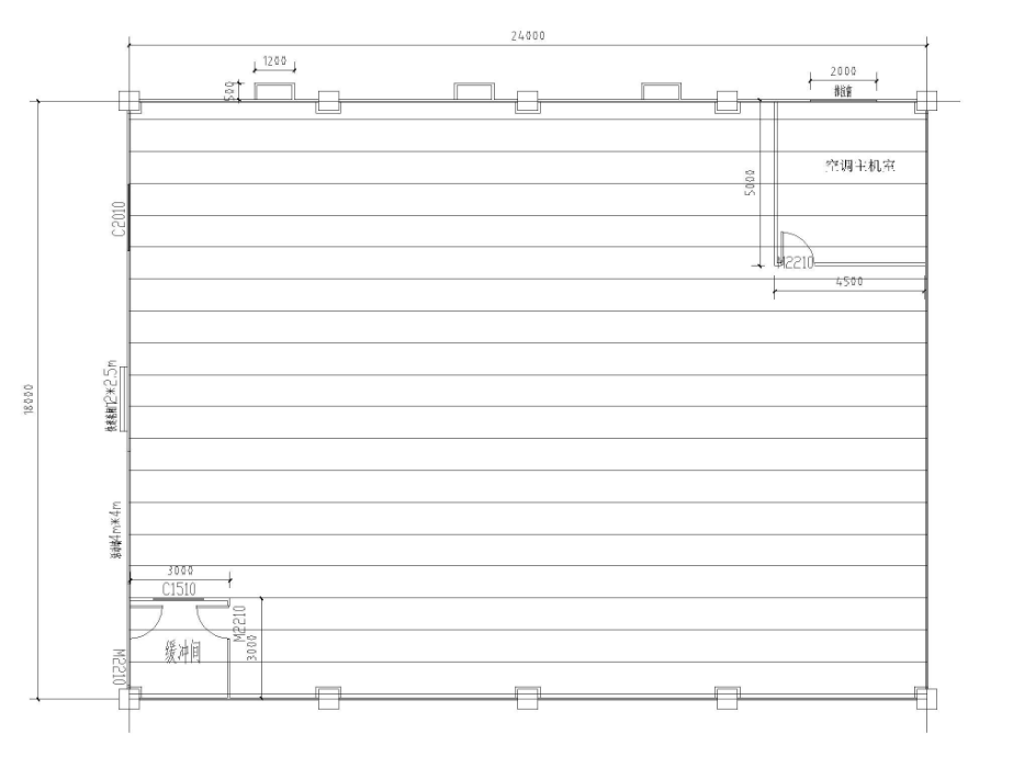
1、大风量:为了满足室内恒温恒湿精度及均匀性的要求,恒温恒湿空调房间的换气次数应足够大,根据规范和实际工程的
经验,一般换气次数在15~50次/h之间,具体需要根据现场的实际条件、行业的不同要求及实验室的温湿度精度要求进行计
算。

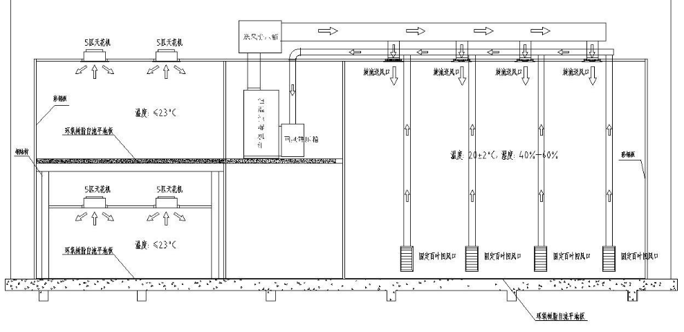
2、系统独立:恒温恒湿车间采用独立的直接蒸发式恒温恒湿空调系统,具有简洁、便于调节、操作管理方便、节能等
优点。在工程设计中,要根据车间的温湿度精度要求合理选择系统,尽可能详细的计算房间负荷,并选取匹配的恒温恒湿机
组。

3、空间保温密闭:在恒温恒显车间设计中,其保温密闭性也是非常关键的;保温密闭性良好的车间具有节约能量、温湿度
精度易控、运行费用相对降低等优点。

4、独特的气流组织:气流组织设计也影响恒温室精度的主要因素之一,合理的气流组织流程应充分发挥送风气流的冷却或
加热的作用,建立一个稳定均匀的温度场,以保证在气流到达工作区时,其平均温度与工作区的温度差不超过允许的温度波动
值,其流动速度在0.25m/s左右。湿度±2%RH、温度±1℃的高精度的恒温恒湿车间,应采用全孔板和局部孔板送风,下部均
匀回风。

继续阅读